muzeum języka

,

praca magisterska 2018, Politechnika Krakowska, Masters in English
lokalizacja: Londyn, Anglia

Wszystko zaczęło się tysiące lat temu. Być może była burza, błyskawica uderzyła w drzewo a ono stanęło w płomieniach. Nasz przodek najpierw się przestraszył, ale potem poczuł, że ogień daje ciepło i światło. Kiedy przybiegło dzikie zwierzę aby go zaatakować, nasz przodek uświadomił sobie moc tego nieokiełznanego żywiołu – był bezpieczny, ponieważ zwierzęta boją się ognia. Postanowił pokazać to odkrycie towarzyszom. Transport, utrzymywanie i wzniecanie ognia, które stało się nieodzowne w ich życiu, wymagało ściślejszej współpracy. Być może ta współpraca była początkiem języka.

Ognisko jest symbolem społeczności – siedzimy wokół niego, żeby poczuć się jej częścią, być razem. Ta pierwotna potrzeba skupiania się wokół ciepła zapewnia bezpieczeństwo i podkreśla przynależność do grupy. Społeczność i język są ze sobą związane od samego początku – społeczność zintegrowała się poprzez język, a sam język rozwinął się dzięki społeczności.

Język to dużo więcej niż tylko środek komunikacji – to fundament percepcji, narzędzie, które buduje kultury. Język pozwala na przekazywanie pomysłów, wiedzy i tradycji kolejnym pokoleniom. To język sprawia, że jesteśmy ludźmi.

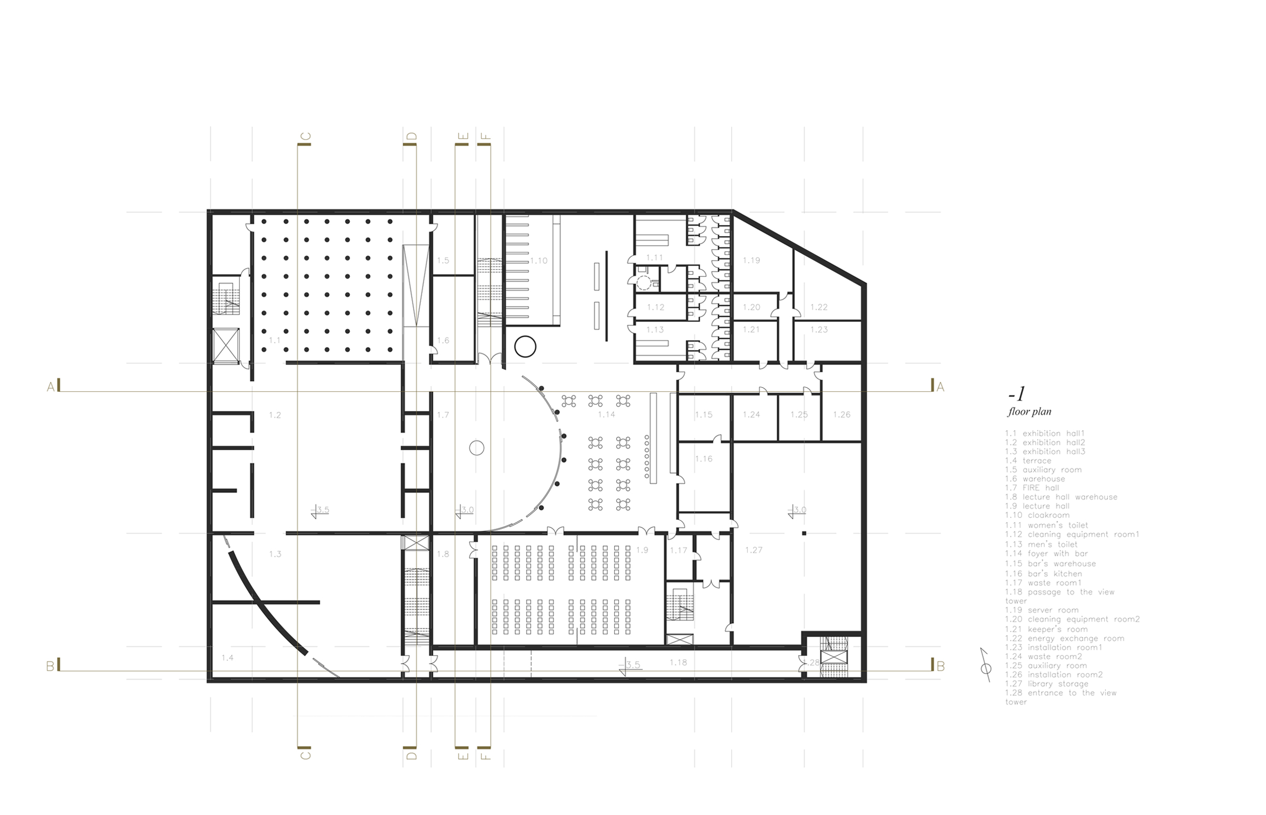
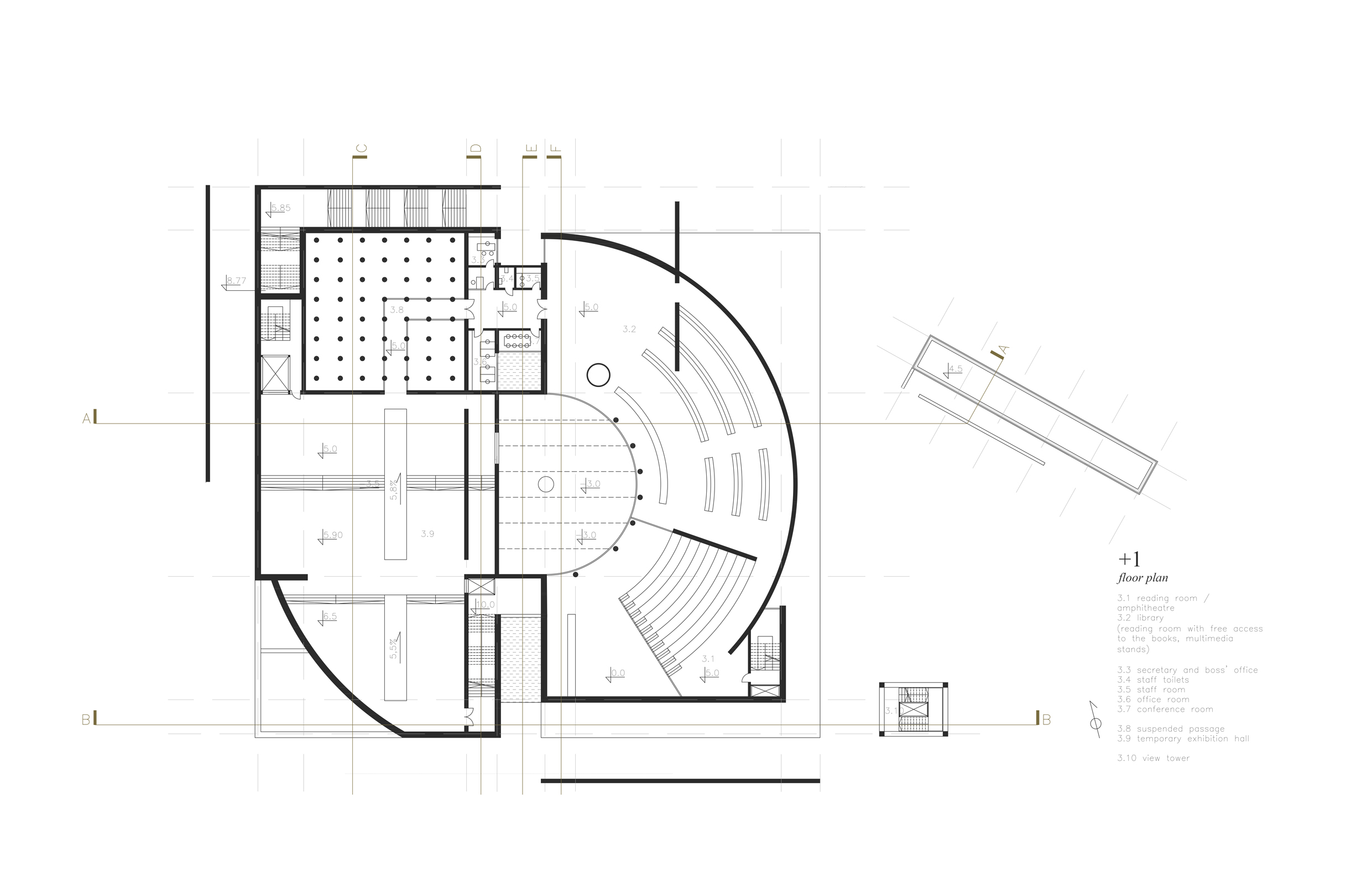
To OGNISKO stało się centrum pomysłu na muzeum. Jego bogata symbolika była pretekstem do odtworzenia historii powstawania języka i umożliwienia ludziom ponownego jej przeżywania. W budynku muzeum znajduje się na samym środku, w miejscu, które łączy dwie bryły i jest widoczne z wielu stron. Droga zwiedzania prowadzi dookoła ogniska i w górę – podróż zaczyna się od cofnięcia się w czasie do wynalezienia ognia, a kończy na współczesności. Ta ścieżka daje szansę zrozumienia i poczucia, jak to wszystko się zaczęło, jak się zmieniło i z czasem się zmienia. 12 pomieszczeń o różnej skali i atmosferze, każde z nich opowiada inny fragment historii.


Nieodłączną częścią strefy stricte wystawowej są funkcje uzupełniające, które również znajdują się na trasie zwiedzania. Najpierw bar, sale wykładowe, potem biblioteka z mediateką i dwa tarasy widokowe. Każdy z tych elementów jest częścią motywu początku i rozwoju języka, a każda interakcja interpersonalna, która sie tam dokonuje zwiększa wartość przestrzeni.

Tworzenie miejsc spotkań, w których pojawiają się ROZMOWY jest najważniejszym zadaniem muzeum języka.


Muzeum języka to projekt z pogranicza architektury i literatury. Sam w sobie jest metaforą, opowieścią, która materializuje się w postaci masywnych betonowych ścian i można poczuć ją na własnej skórze. To muzeum emocji i przeżyć, bo temat języka trudno uchwycić w racjonalny sposób. Zwiedzając je pokonujemy trasę rozwoju języka, od pierwszych onomatopei do współczesności. Przeżywamy ją na nowo, by dostrzec potęgę języka jako narzędzia, jego moc zbliżania ludzi i tworzenia społeczeństw, jego cechy kulturotwórcze. Muzeum ma szansę być miejscem integracji mieszkańców dzielnicy North Woolwich w Londynie, która wciąż boryka się z problemami industrialnej przeszłości. Jako ośrodek kultury z salami wykładowymi, amfiteatrem, biblioteką, wieżą widokową może urozmaicić monotonny krajobraz zabudowy mieszkaniowej.

Further Projects