
9 semestr 2018, Politechnika Krakowska, Masters in English
lokalizacja: Rio de Janeiro, Brazylia
Contemporary theatre is based more on relation than on displaying art itself. It is constant conversation between audience and actors, reality and mistery, hiding and showing. It uses variety of tools to talk, to TELL the story, but this story somehow affect all of us. This is a difference between television and theatre – sitting in front of TV, we’re not participants, but only creepy watchers, there’s this safety glass in the middle. It’s far more dangerous to be inside the action, but it’s only way to FEEL what’s going on, what is important.
Teatro Social in Rio de Janeiro was born as an integration space where cultures, ideas and people of all classes and ages can merge to create art. The case was to bring attention to FAVELADOS who make up huge percentage of all residents, but are still socially aside. Even if they live in poor condition, their life is colorful and vivid, they create great communities that support each other and have strong relations. They are very self-sufficient – their homes and neighbourhoods are made by themselves. This phenomenon is inspiring the whole world, especially participation movement – favelados seems to be very active and progressive and they really CREATE THEIR CITY.
Even if living in favelas is nowadays nothing of a shame, city still needs more connections between high and low class to understand each other but also to cooperate. As developing slums shows, people living there are extremely creative and resourceful, and such features are the core of making art. Theatre can also work as form of therapy and resocialization, because feeling of omission and neglection is surely alive. Creating amateur group of actors is a great way to find talented people and help them to develop and study, but also to activate this society in more public and official way. Everything what is going on in slums, stays in slums and this is the reason of misunderstandings. This is also about changing schematic way of thinking about theatre as something exclusive, only for rich and highly educated. History shows, that before the Internet and TV, this was very popular way of spending time by all classes. The events was connected with eating, drinking and meeting in public, all to integrate and have fun. Nowadays tickets for performances are way to expensive and programs often miss such target. To educate and enterntain all people, theatre shouldn’t work as exclusive, luxurious goods, but more as popular form of recreation.


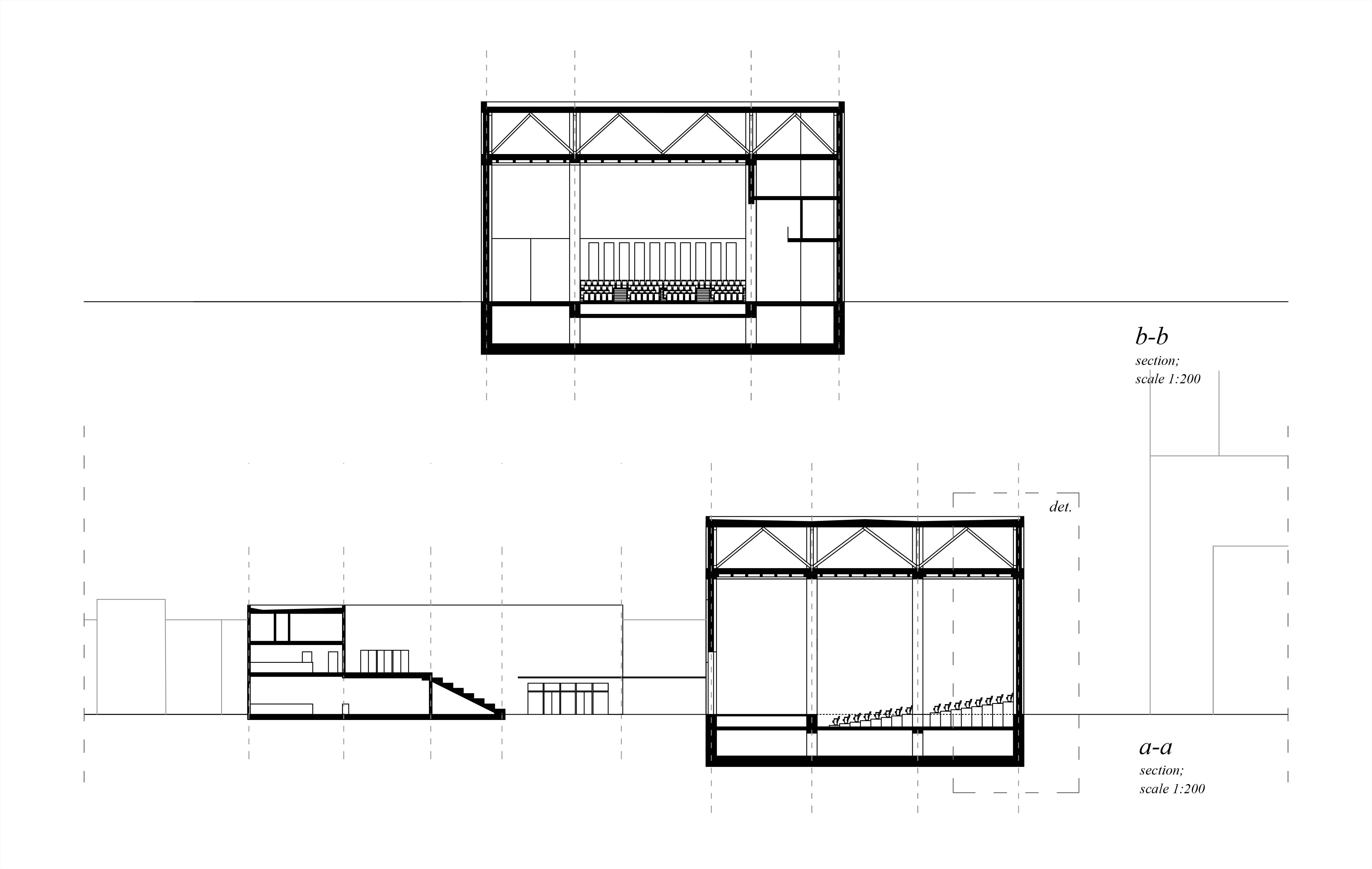
The building itself shows this centripetal force symbolizing integration – all directions are meeting in the central courtyard, which is an important public space. The composition is based on the contrast: closed massive blocks from the outside hiding vivid open space flowing in between interior and exterior, deterring appearance with welcoming entrances, classic ancient amphitheatre used in different modern ways. As versatility of the spaces was the heart of the design, buildings works mostly as a shell or a skin for everything which will be going on inside.


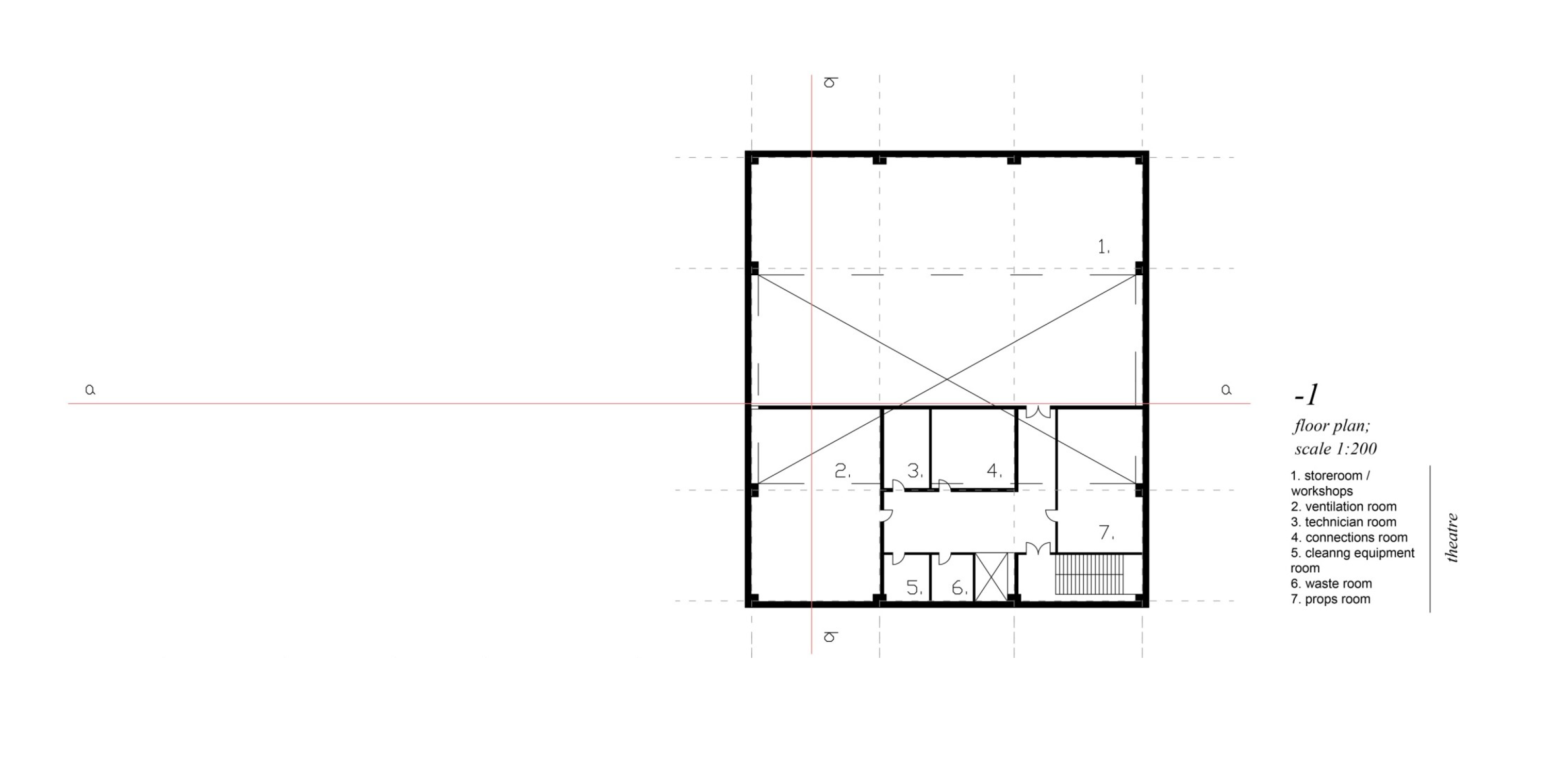
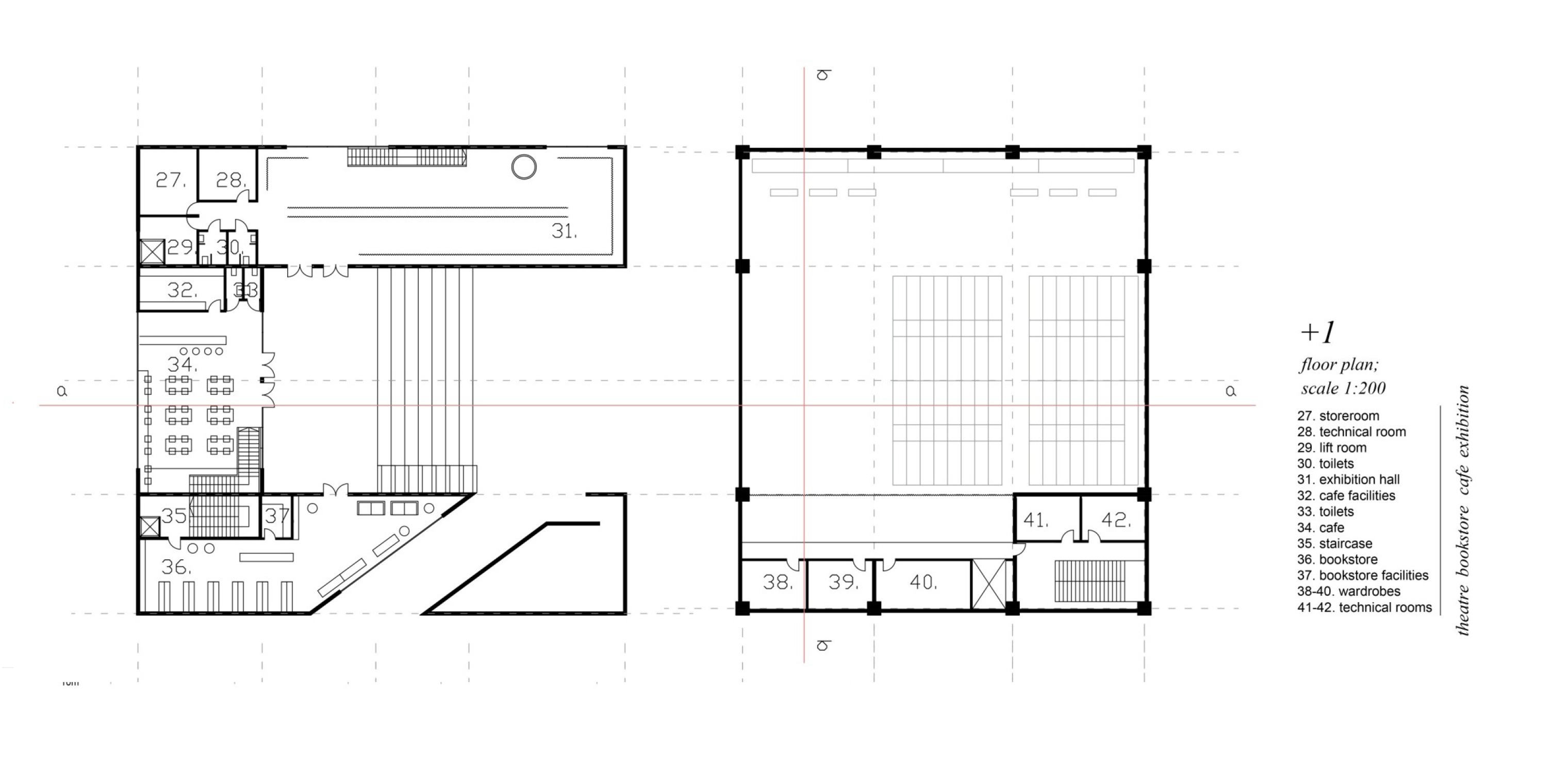
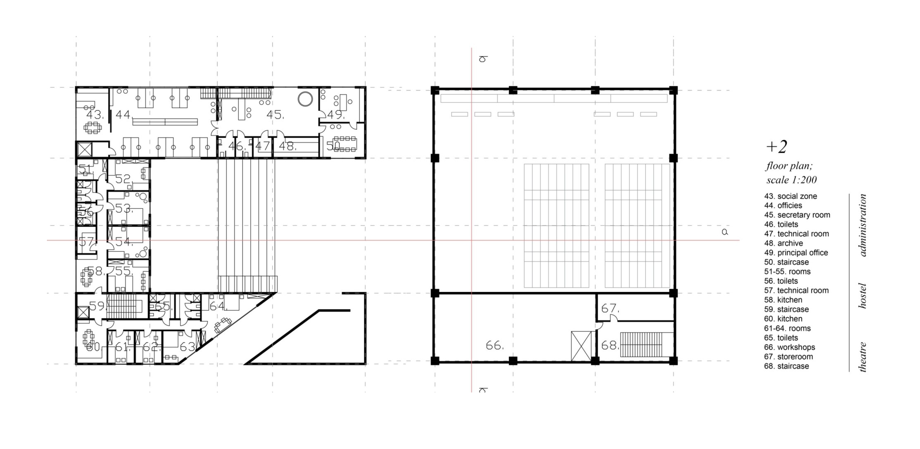
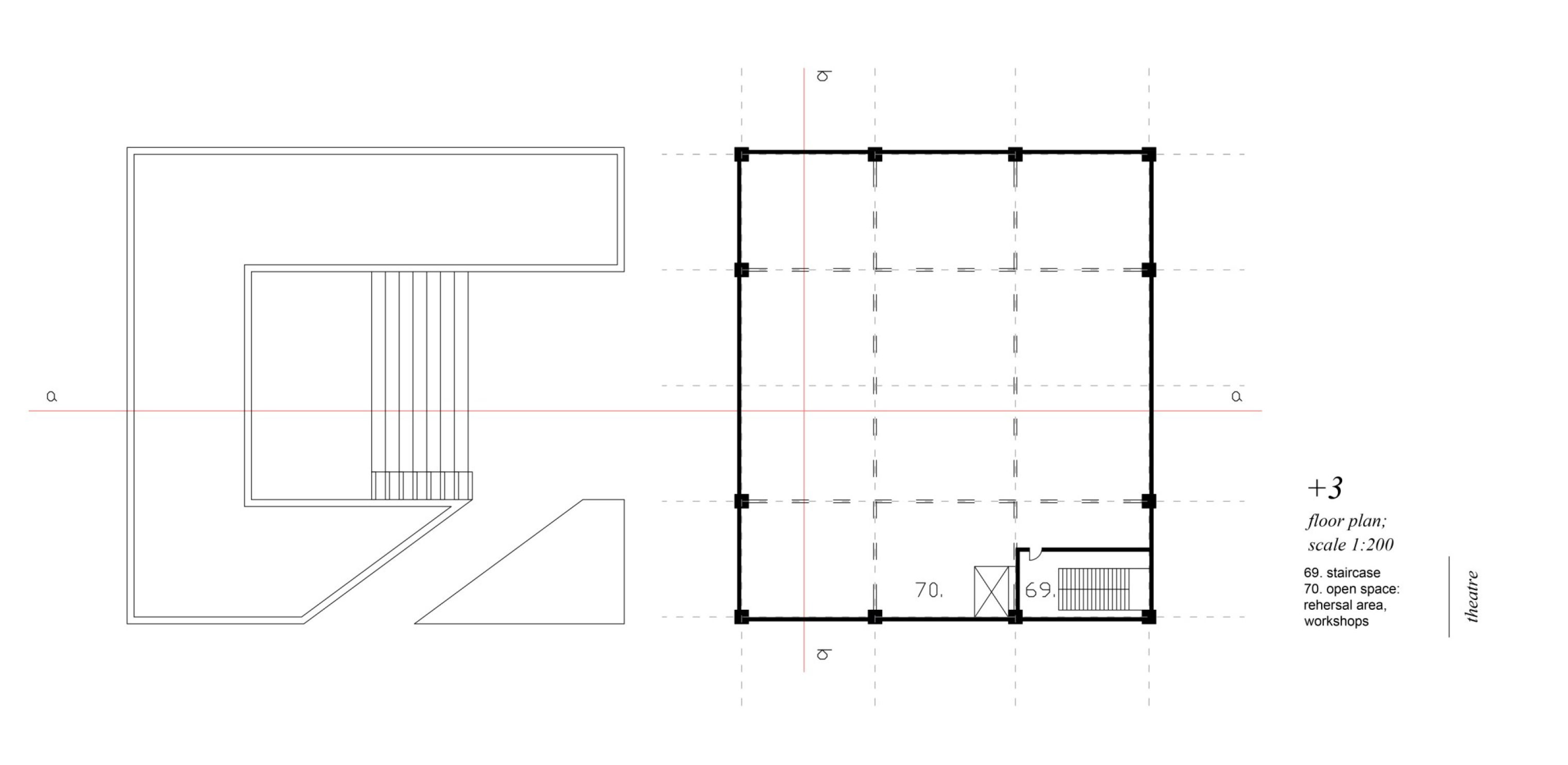
This multifunctionality is located in two parts of the composition: outside, on the amphitheatre, and inside in the main hall. The amphitheatre is based on STAIRS, which due to its simple form and casual character works perfectly as a public space. They can also be a playground, „reading room”, cafe or outdoor cinema. Inside the box, flexibility is based on movable audience, which can be placed in different configurations or totally removed. This „removed” status serves perfectly daily life needs of local people. It’s possible to organize there a fiesta or a meeting for the neighbours, play sport when it’s too hot or rainy outside, run an exhibition or show the performance. In such dense urban tissue, huge open space is a kind of rarity.







